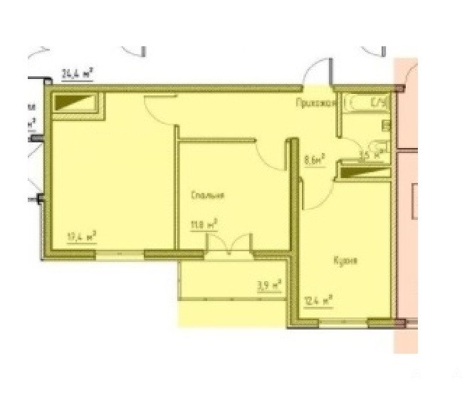
Продажа 2х-комнатной квартиры

67 м²
Площадь
40.00 м²
Жилая площадь
8.00 м²
Площадь кухни
3/17
Этаж

43 438 322 ₽

644 486 ₽ за м²

ID объявления 12016297

Поделиться

Добавить в избранное

В доме устанавливается современная система вентиляции и кондиционирования, качественное лифтовое оборудование от иностранных производителей. Огороженная и благоустроенная территория, прогулочные зоны, внутренний двор, тенистые скверы, освещение в вечернее и ночное время, спортивные и детские площадки и полное отсутствие движения автомобилей в самом центре города –все это делает ваш дом лучшим местом для жизни и отдыха. Системы жизнеобеспечения. Электроснабжение, водоснабжение - центральные. Вентиляция и кондиционирование - естественно-приточно вытяжная система вентиляции, центральное кондиционирование. Лифты. Рядом с ЖК расположены: школы, детские сады, супермаркеты, гипермаркеты, рынок, рестораны, кафе, фитнес-клуб, салоны красоты, медицинский центр, поликлиника, Сбербанк.
Близость к морю, набережной и центру города. Транспортная доступность: остановки общественного транспорта.
Номер объекта: #5/544513/11901

Дата обновления: 29 сентября 2025