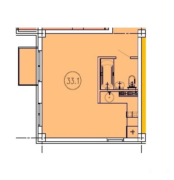
- 33 м²
- Площадь
- 18.00 м²
- Жилая площадь
- 8.00 м²
- Площадь кухни
- 2/4
- Этаж
7 613 000 ₽
230 000 ₽ за м²
ID объявления 12015124
Поделиться
Добавить в избранное
Представляем к продаже квартиру в новом 4-х этажном доме, расположенном в центре города Сочи!
Из окон данной квартиры открывается вид на море! Квартира представлена черновой отделки, свободной планировки, панорамные окна. Коммуникации центральные: электричество, водоснабжение, канализация.
Придомовая территория закрытая, установлены видеокамеры, вмонтирована безопасная детская площадка, зона отдыха, отведено место для автопарковки.
В радиусе 150 м от комплекса расположена остановка общественного транспорта, в 300 м находятся магазины "Пятерочка" и "Прохлада". Рядом расположены многочисленные магазины и кафе, кинотеатр, и для их посещения удобнее воспользоваться транспортом.
Номер объекта: #5/541400/11901
Дата обновления: 17 сентября 2025