230 м²
Площадь
4 сот
Площадь участка

25 000 000 ₽

108 696 ₽ за м²

ID объявления 6312637

Поделиться

Добавить в избранное

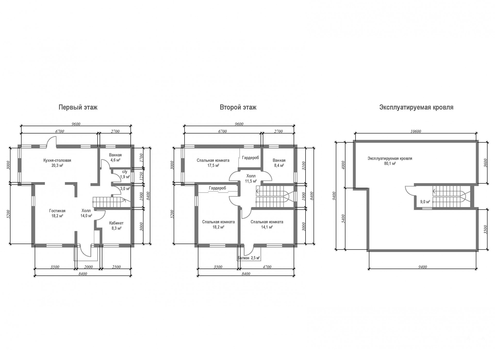
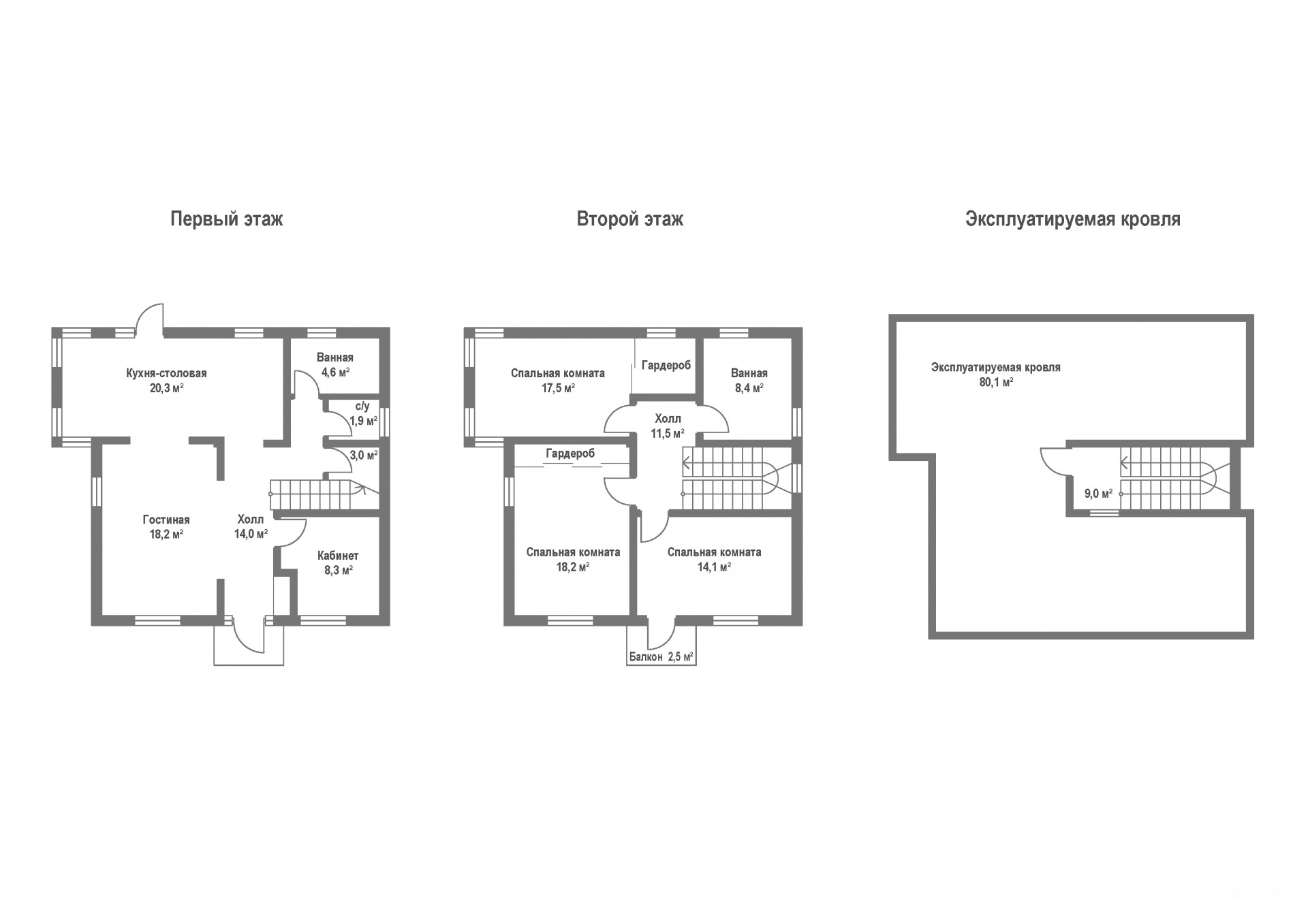
Общая площадь 230 м.кв. площадь этажей 150 м.кв., кровли - 80 м.кв.

Полноценный ж/б каркас дома. Материал стен - керамзитобетонный блок. Толщина наружных стен - 40 см.

Коммуникации: водоснабжение, электроснабжение 15 кВт, газоснабжение, канализация - септик.

Земельный участок 3, 8 сотки - ИЖС, абсолютно ровный!

Расположение:
Выезд на Краснополянское шоссе - 0, 5 км 1 минута
Аэропорт - 6 км 10 минут
Ж/Д вокзал - 8 км 15 минут
Морской пляж - 8 км 15 минут
Олимпийский парк - 12 км 20 минут
Красная поляна - 34 км 30 минут

Дата обновления: 2 августа 2023