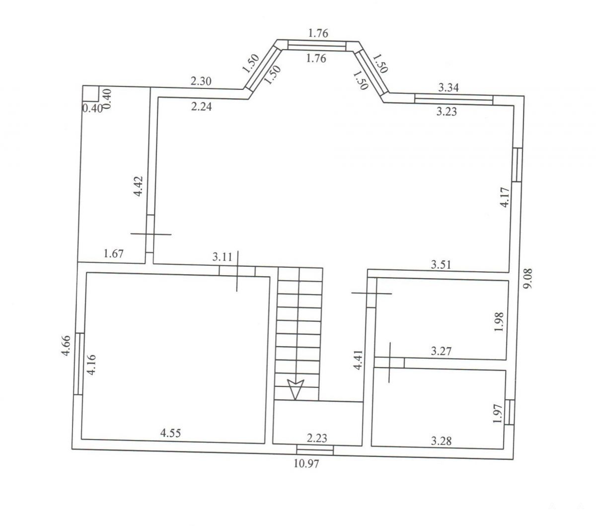
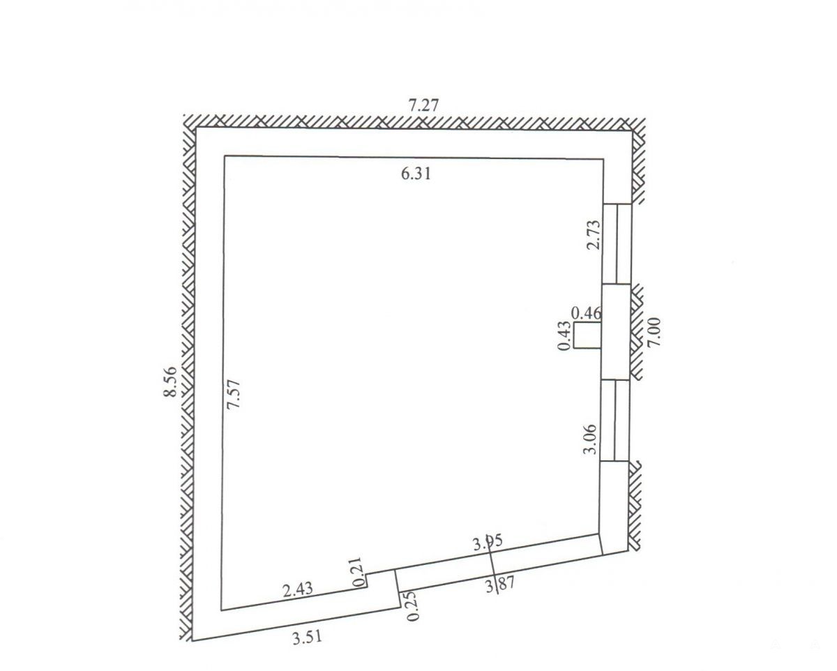
- 120 м²
- Площадь
- 2
- Этажность
- 4 сот
- Площадь участка
28 800 000 ₽
240 000 ₽ за м²
ID объявления 12023207
Поделиться
Добавить в избранное
На продажу выставлен современный коттедж.
Продаётся с чистовой отделкой.
Коммуникации заведены в дом — электричество, газ, водоснабжение, канализация.
Панорамный вид на горы Красной Поляны и Кавказские хребты.
Фасад дома готов. Придомовая территория озеленена, есть машиноместо.
Инфраструктура района располагает всеми социально-значимыми объектами: образовательные учреждения, поликлиника, банкоматы, продовольственные магазины.
Рядом с домом остановка общественного транспорта.
Возможна ипотека, рассрочка. Мат. капитал. Без доплаты за газ.Номер объекта: #5/544754/11901
Дата обновления: 17 сентября 2025