Продажа помещения свободного назначения
Краснодарский край, Сочи, р-н Адлерский, пгт Красная Поляна, ул Защитников Кавказа, 120/3
129 846 000 ₽
570 000 ₽ за м²
- 228 м²
- Площадь
- 1/6
- Этаж
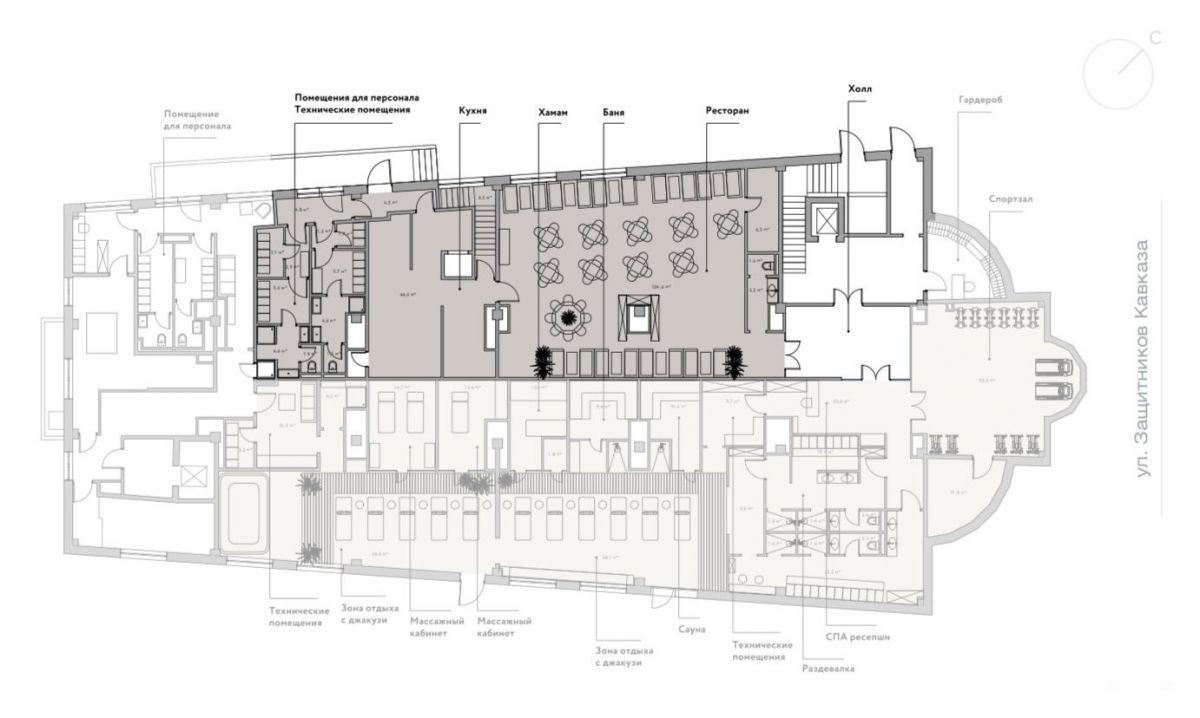
В продаже помещение под ресторан, который начнет принимать своих гостей уже в конце 2023 года. Комплекс создается на базе готового комплекса, который сейчас проходит процесс обновления, что значительно ускоряет создание и запуск проекта.
Технические характеристики
Общая проектная S - 227, 8 кв.м
Проектное решение:
- зал ресторана, свой санузел для гостей ресторана;
- кухня со вспомогательными помещениями;
- технические помещения персонала ресторана с раздевалками и душевыми;
- вспомогательное помещение кухни на -2 этаже 39, 8 кв.м;
- отдельный вход для персонала кухни;
В ресторан можно попасть напрямую с улицы, что очень удобно для привлечения дополнительного трафика.
Водоснабжение и канализация - несколько стояков ГВС, ХВС, канализации. На отводных трубопроводах смонтирована запорная арматура (шаровые краны). Смонтирована автоматическая система
водяного пожаротушения (АУПТ).
На все вопросы отвечу по телефону, звоните.Номер объекта: #5/563064/11901
Дата обновления: 30 сентября 2025