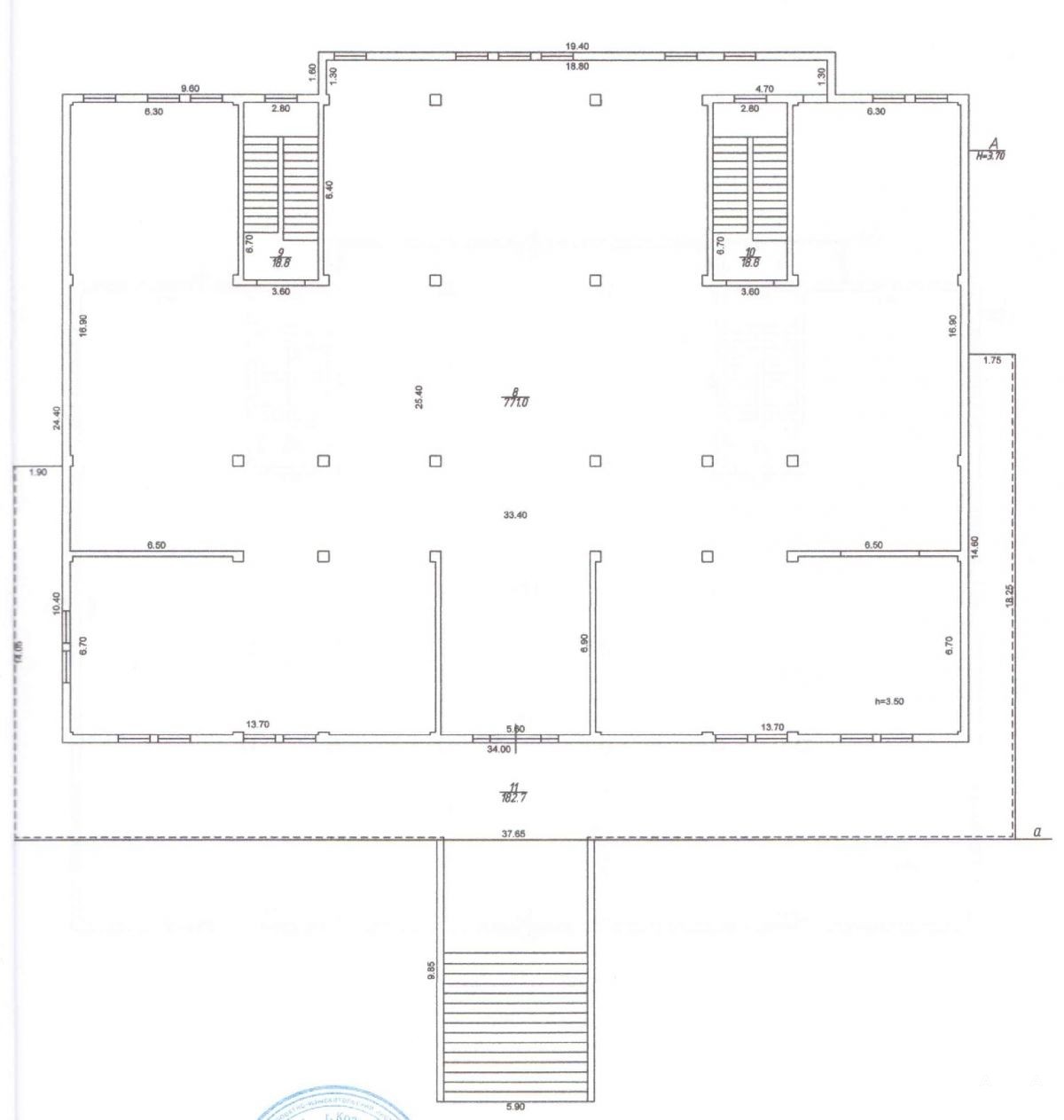
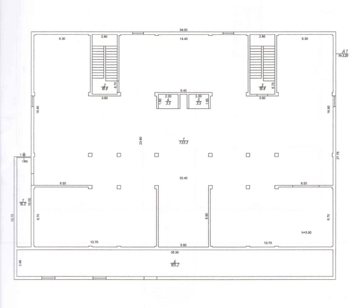
Продажа помещения свободного назначения
Краснодарский край, Сочи, р-н Адлерский, с Эстосадок, ул Эстонская, 99
1 650 000 000 ₽
485 295 ₽ за м²
- 3 400 м²
- Площадь
- 4/4
- Этаж
Предлагается к продаже здание свободного назначения, находящийся в самом центре Красной Поляны, напротив Казино и Горная карусель.
Удачный объект под гостинично-ресторанный комплекс, торговый центр и т.д.
Очень хорошее место, с высоким автомобильным и пешеходным трафиком.
Этажность: 3 + цокольный
Высота потолков:
Цоколь - 3.2 м;
1-й этаж - 3.7 м;
2-й этаж - 3.7 м;
3-й этаж - до 7 м.
Земельный участок 25 сот. в собственности.
Получены тех. условия:
Электричество - 350 кВт;
Газ - 24 м3;
Вода - 22 м3.
Центральная канализация.
Есть возможность сделать реконструкцию здания, с увеличением площадей до 6.000 м2.Номер объекта: #5/602416/11901
Дата обновления: 30 сентября 2025